
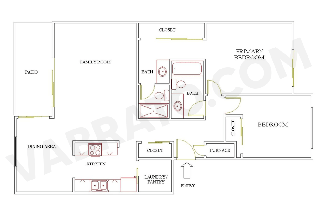
Floor Plan for 2/2 Condo
This is the Floor Plan Design for a 2 bedroom, 2 bath condominium at Brittan Heights in San Carlos, which is approximately 1,040 sq. ft. There are about 250 of these 2/2 condos in the complex.
Some units are mirror copies of each other so you would find everything flipped around, but the layout remains the same as does the floor space.


